1 / 7

当前位置: 首页 » 小区效果图 » 小区效果图 »金地国际公寓150平米三居室中式风格装修效果图 日期:2015-02-10    点击:5   

2
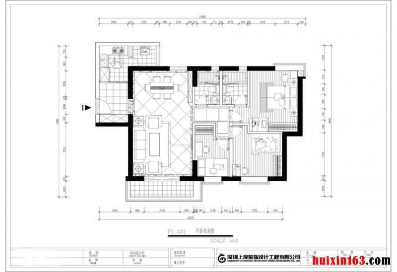
金地国际公寓150平米三居室中式风格装修效果图--平面图
小区效果图说明
  本案所示是福建省福州市金地国际公寓150平米三居室中式风格装修效果图,预算约为8万,工程类型为半包。此套设计风格理念定义为中式风格,设计师运用大量中式元素进行综合搭配。案例整体素雅别致、清新自然。客厅的地面处理采用大理石地砖的铺装方式,彩用彩色几何格子的图案,类磨砂的质地,纹理清晰自然,古朴典雅,韵味十足;地砖上中式家具配置很是妥当,原木色的调子处理,方方正正的造型掌控,无不透露着中式传统家装的风范,中式茶具的摆放,更加深了案例整体中式风格的底蕴,电视背景墙的墙纸选择,恰当好处理配合了客厅的整体环境,亲切而自然;旁边的窗帘布艺选择红色,体现了中国传统的审美,顶棚的简洁处理,优雅大方,边缘部分的镶边也采用古朴木色,新颖而且恰到好处。总体淡然别致、从容不迫。
更多»推荐小区效果图
 
0条 [查看全部]  相关评论